“LYNK & CO 领克 MEC 汽车运动体验中心(成都)”坐落于天府国际赛道核心区,紧临主看台,作为成都东部新区的智造产业升级的重点建设项目,它不仅是吉利铭泰方程时空港的重要组成部分,更凭借直通赛道与社会街道的独特的区位优势,成功搭建起赛事、领克社区与城市日常生活之间的桥梁。

建筑设计汲取领克性能车型的设计语言,通过解构主义手法,将汽车的流体力学中的动感线条、曲面和个性细节融入空间,让人沉浸式体验电动化时代的能源变革。

01 设计理念:“都市对立美学”下的建筑设计
建筑设计理念源于领克品牌的核心价值观——“生而全球,开放互联”。通过融合领克的独特的“都市对立美学”,将领克汽车的元素抽象转化,旨在营造出极具流动感与前瞻性的建筑空间,仿佛是一艘连接赛道与城市、衔接新旧能源交替的“飞船”。




充满力量感的运动线条与流畅曲线彰显领克赛车运动的速度与激情,而建筑的解构与重组设计手法,着重强调都市环境中对立元素相互碰撞又和谐共存的独特美感:在色彩上以中性色为主,辅以亮色软装点缀;在材料上以粗犷的混凝土与精致的金属元素形成质感对比;在整体造型上结合不规则几何和流线型设计,于虚实之间呈现出充满动感和张力的空间。

项目内部打破传统赛道配套模式,重塑为全天候都市引擎——从高挑展厅中抽离的汽车线条幻化为结构构架,多层观赛平台与社区空间交相呼应,并通过全时段运营的交互式灯光系统将新能源动力节奏转译为空间氛围,令人沉浸在高速度与高科技的场景之中。
细节上深度呼应品牌核心视觉元素中代表速度动感的“能量晶条”,将其转译为外部幕墙灯光矩阵和内部的无极调光灯膜,让室内外设计逻辑达成一致。

02 表皮与材料策略:从流体力学到建筑表皮
建筑外立面采用极具未来感的双层开缝曲面铝板幕墙,通过连续的流线造型与动态的斜向接缝设计,呈现光影在曲面上的动态折射,与周边环境形成鲜明对比。表皮铝板之间的细致勾线造型和一体化设计灯带,呼应现代汽车设计中精准比例切割与柔和曲面结合的流线美学。

斜面排布的铝板经过表面处理氟碳漆预辊涂,双层幕墙内层披水板在造型转折处自然导引雨水排流,极大提高了耐候性、抗腐蚀性。不同功能及多层次高度的观赛视野设计,达成功能与形式的高度统一,让建筑外立面的曲面设计形成了流动的视觉冲击力,完美契合品牌对性能车速度、新能源形式与功能统一的追求。

内部空间设计延续外立面材料的使用,融合中性金属、超白玻璃、彩釉玻璃和未来感材质,同步辅以灯光塑造空间氛围,营造出内外一致的简洁科技氛围,同时保持了材料的功能性与表现力。
03 功能布局与模块化设计:模块化的内部空间
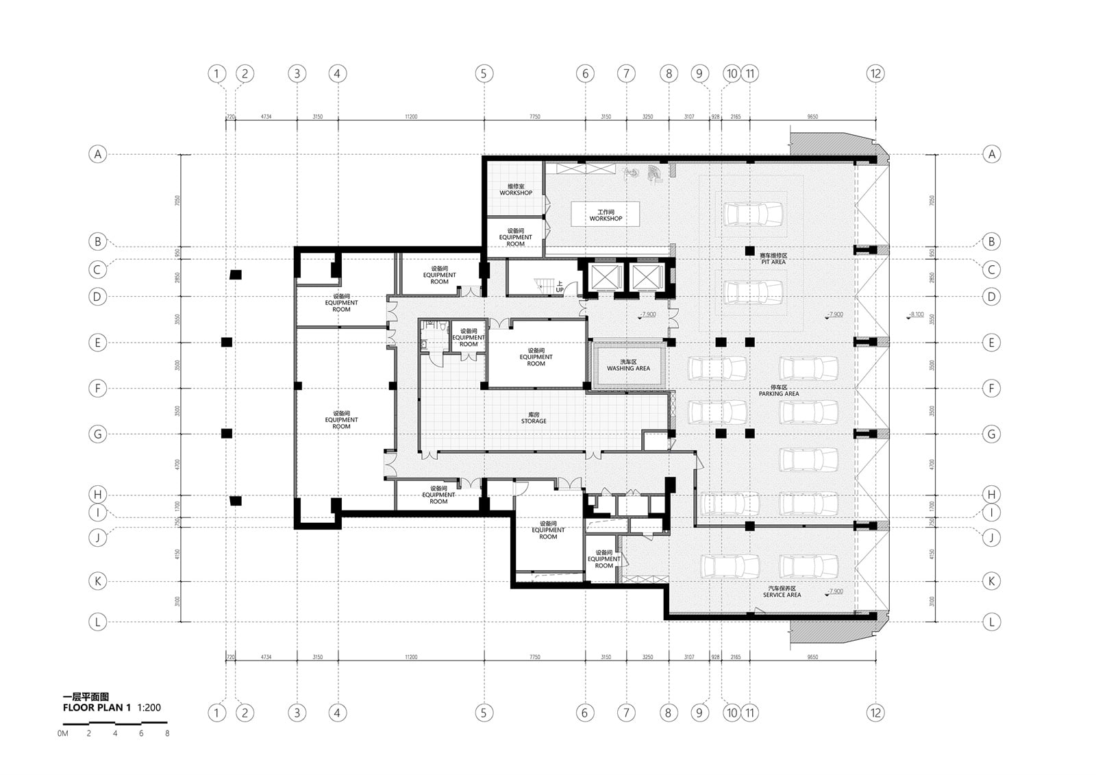
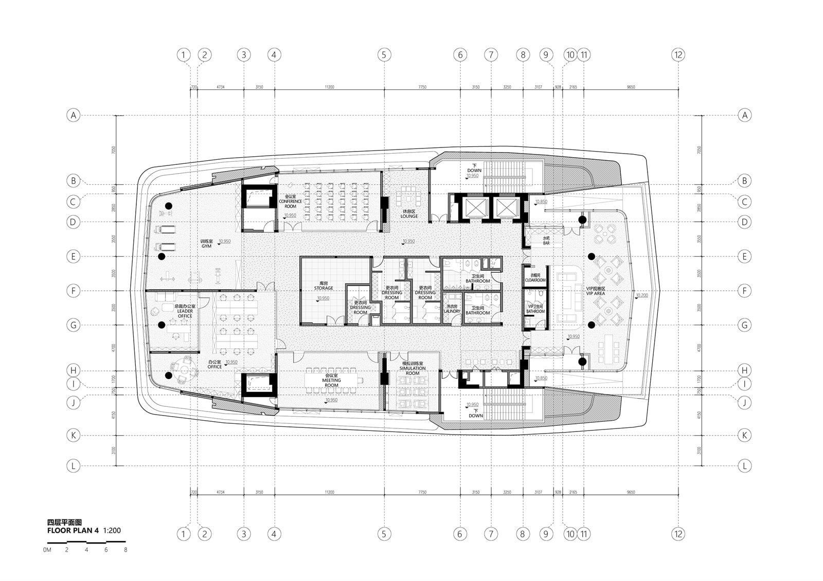
建筑总面积 3884 平方米,高度 24 米,共四层,功能布局兼顾领克品牌定位与多样化体验需求:一层设有通高展厅、观赛区、品牌展示及互动体验区等;二层为多功能沙龙厅、领克社区及休憩空间等;三层配置 VIP 观赛区、培训与模拟室、健身及办公功能等;地层则直通赛道,包含赛事 P 房、改装及工作间等,整体实现展示、赛事、社交与休闲的综合体验。



模块化设计使空间能灵活应对品牌展示、赛事支持、社交体验与家庭休闲的多重需求;建筑形态与功能的融合,进一步强调了速度、社区、体验之间的有机流转。
04 可持续性系统:能源的高度再利用
MEC 汽车运动体验中心在设计中充分考虑可持续性发展与绿色环保,建筑屋顶安装光伏组件,智能建筑管理系统(BMS)精准控制照明、空调与通风系统,降低能耗;同时选用地域性材料,景观上搭配透水铺装与绿化斜坡实现雨水管理,模块化配置适应多元化运营场景,最大限度地降低碳足迹,提升经济与运营可持续性。


目前项目正在施工中,预计将于 2025 年面向公众开放。












05 项目信息
项目名称:LYNK&CO 领克 MEC 汽车运动体验中心(成都)
项目类型:建筑设计/室内设计
项目地点:中国 成都
建筑面积: 3884㎡
建筑设计事务所:MUDA 慕达建筑
设计开始日期:2023.11.27
设计截止日期:2024.04.22
主持建筑师: 卢昀
设计团队:李昊、何帆、李爱东、荣典、王硕、刘天翼、刘人恺、黎金羽、甘梓涵、孙佳雨、钟林希
业主单位:成都铭泰赛车体育发展有限公司
幕墙设计顾问:成都几里创意幕墙
结构设计顾问:Yuki.Law
建筑施工图设计:基准方中建筑设计股份有限公司
灯光概念设计顾问:北京宁之镜照明设计有限责任公司
摄影:卢昀







